Projet
Pulse
Lieu
Siège Social, 35 rue de la Gare, Paris
M.0.C
Pierre & Maurice
Phases livrées en MOC
Concept et croquis
M.O.E
projet non remporté
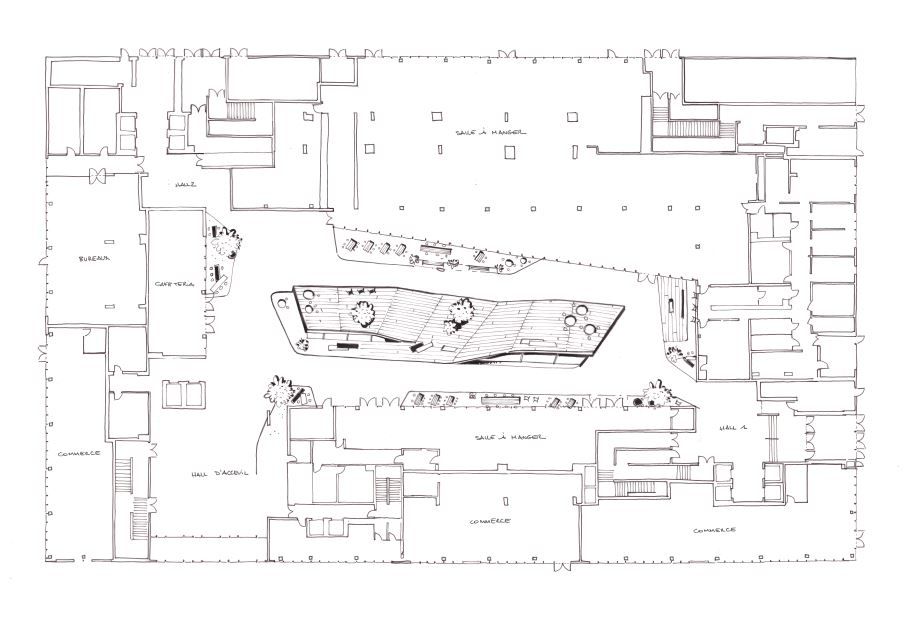
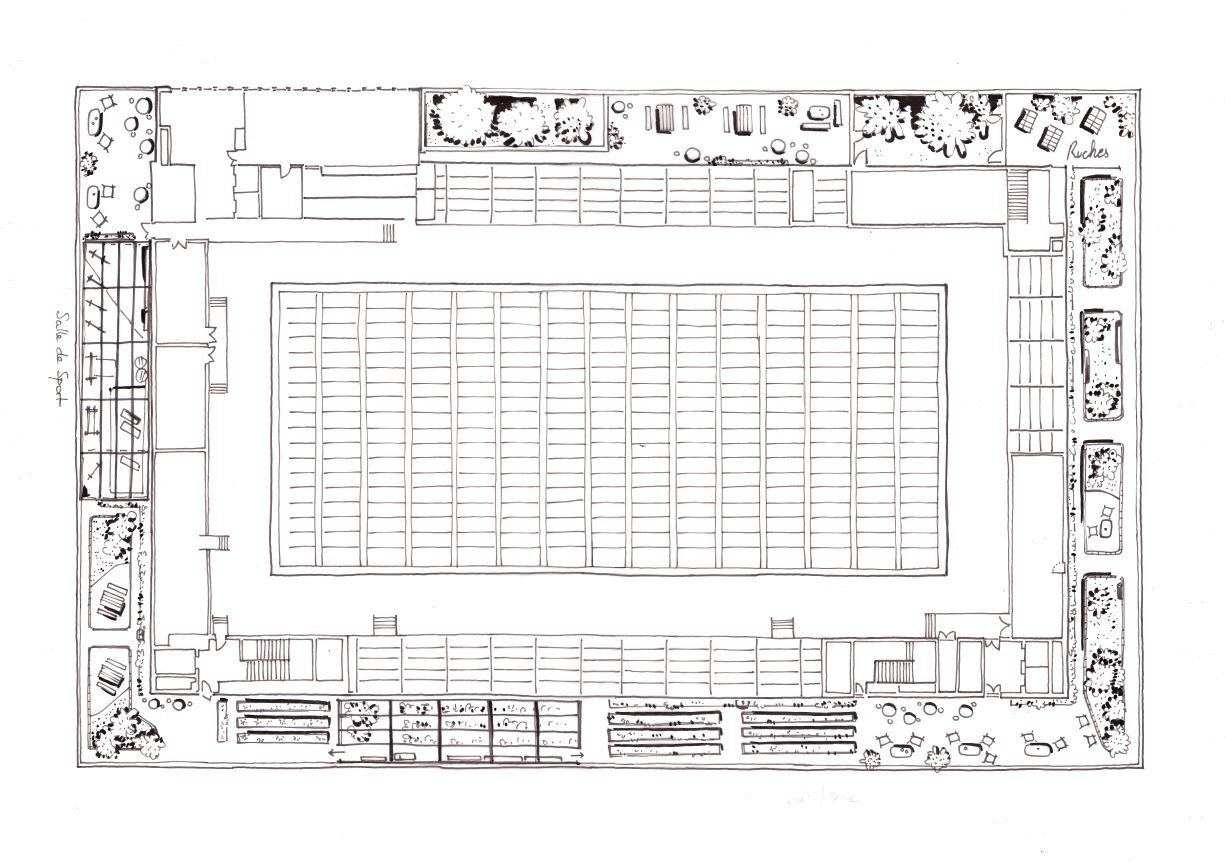
Icade nous interroge pour une mission de direction artistique / design des espaces communs du futur site Pulse. Situé au bord de Paris, ce site exceptionnel est un « centre d'affaires » qui pourra accueillir un ou plusieurs preneurs. Aussi, a été définie une programmation incluant restaurations et autres prestations modernes ou prestigieuses. Le site a besoin de valoriser ses espaces communs dit « de passage » pour répondre aux ambitions de commercialisation.
Projet suivant :
Comme un poisson dans l'eau





